+

Umbau Sanierung und Erweiterung eines Einfamilienhauses

Ansicht

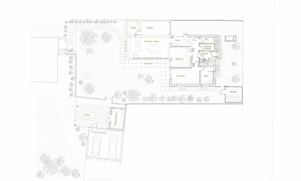
Grundriss Erdgeschoss

Grundriss Obergeschoss

Ansicht Garten

Ansicht Nord

Ansicht Ost

Eingangssituation

Schnittansicht

Projektinfo

Realisierung:

Auftraggeber:

Ort:                    


architekten filutowski schmuck PartG mbB 

2022

private Bauherrschaft

Augsburg


Diese Website verwendet Cookies. Bitte lesen Sie unsere Datenschutzerklärung für Details.

Ablehnen

OK